
AUGUST 2003
The deal closed on 8/22 and by 8/24 we had all the carpet and ceiling tiles torn out.
By the next weekend, the first interior walls were coming down. When the library
was first built, the main rectangle area was totally free of any walls -- just one big
open space. All the existing interior walls were put in around 1990, when the library
moved and a church moved in. Interestingly, the city had no records of building
permits or inspections when it was converted into a church. I guess they figured
God's permission was all they needed .... hmmm, isn't that special?
08.24.03Carpets torn up in the entry foyer. The old reception window wall will be
removed to make way for a new glass wall and door into the master bedroom.
Ceiling tiles have also been removed throughout the building.
08.30.03Two of the three entry foyer walls have been demolished into a pile of
rubble and 2x4s. This will be the view from the living room looking past the foyer
toward the master bedroom glass wall.
View from the existing reception window looking past the foyer toward the future
living room (left) and kitchen/dining areas (right) beyond.
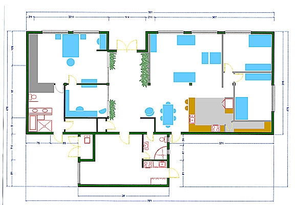
The floorplan. This is Don's first draft of the new floorplan, with new bedroom walls
foyer planter wall, kitchen, main bathroom, and master bedroom/bathroom.
There will be some significant changes before the final design.Click here to go to the next month
Also visit Don's portfolio site: www.designbutton.com